APPARTAMENTO ALL'ASTA

In vendita
Appartamento
Desio
162.498 €
Descrizione
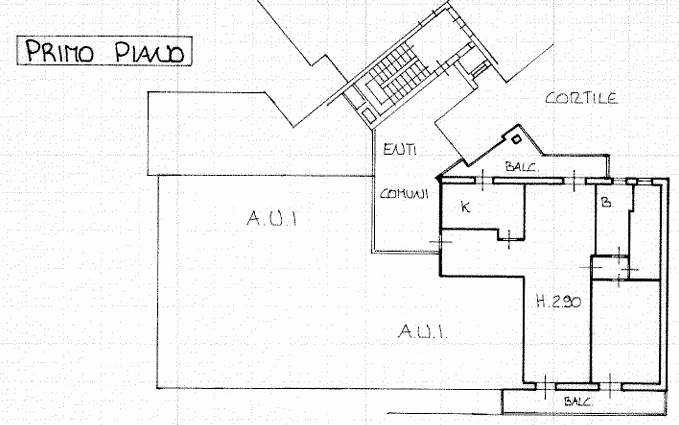
Appartamento posto al piano primo con annessa cantina al piano S1
Composto da ingresso, cucina, soggiorno, due camere da letto, disimpegno, bagno, ripostiglio e due balconi.
L’immobile è caratterizzato da un impianto di riscaldamento di tipo centralizzato e da impianto di acqua calda autonomo.
Autorimessa privata posta al piano S1
Caratteristiche principali
Codice:
LOTTO N. 4
Città:
Desio
Categoria:
Appartamento
Locali:
3
Camere:
2
Mq:
116
Box:
1
Mq Box:
14
Balconi:
2
Piano:
1
Classe energetica:
G
Accessori
Ascensore
Mappa
Via Garbaldi, 101 - Desio (MB)
Richiedi informazioni
Invia
Cookie preference