Toggle navigation
Home
Immobili
Vendite
Affitti
Prestigio
Aste
Chi siamo
Servizi
Abbonamenti
Vuoi vendere la tua casa?
Contatti
it
it
APPARTAMENTO ALL'ASTA
In vendita
Appartamento
Ceriano Laghetto
108.750 €
Previous
Next
Descrizione
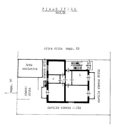
Appartamento di mq. 124, ingresso, cucina abitabile, soggiorno, due camere, bagno, due balconi con annessa area esclusiva di pertinenza;
Solaio al piano sottotetto;
Ripostiglio e locale cantinato pertinenziali al piano interrato.
Caratteristiche principali
Codice:
78/2022 U MB
Città:
Ceriano Laghetto
Categoria:
Appartamento
Locali:
3
Camere:
2
Bagni:
1
Mq:
120
Mq Giardino:
28
Balconi:
2
Piano:
Terra
Anno:
1964
Classe energetica:
G
Mappa
Via BRERA, 12 - Ceriano Laghetto (MB)
Richiedi informazioni
Autorizzo il trattamento dei miei dati personali in base al Regolamento UE n. 679/2016 -
Privacy Policy
Autorizzo al trattamento dei dati per finalità di marketing, attività promozionali, offerte commerciali ed indagini di mercato.
Invia
Mantieni impostazioni di default X
Uso dei cookies
Questo sito fa uso di cookies. I nostri cookies (propri) e quelli dei nostri Partners (cookies di terzi) servono per poterti offrire un'esperienza unica con noi. Per questo motivo, insieme ai nostri partners, raccogliamo e processiamo informazioni non sensibili (come l'identificatore del tuo dispositivo o le pagine che visiti).
In qualsiasi momento potrai eliminare, modificare o verificare le informazioni che condividi in
Cookie preference
o nella nostra
Cookie Policy
e
Privacy Policy
.
Necessari
Funzionali
Profilazione
Analitici
Accetta tutti
Rifiuta tutti
Accetta selezionati
Cookie preference