APPARTAMENTO ALL'ASTA

In vendita
Appartamento
Seregno
180.000 €
Descrizione
Appartamento della superficie commerciale di circa 88 mq
Trilocale con doppio affaccio, ubicato al terzo ed ultimo piano mansardato di complesso edilizio abitativo di n. 4 piani
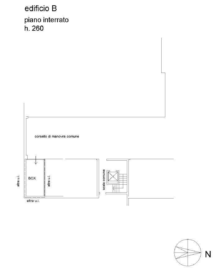
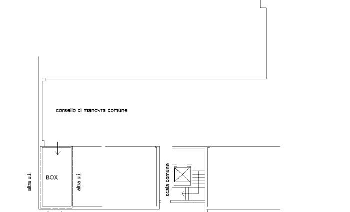
Composto da: ampio soggiorno dotato di zona cucina a vista e di affaccio su ampio balcone, disimpegno notte, due camere - la più grande delle quali dotata di balconcino - un bagno e autorimessa singola posta al piano interrato.
Caratteristiche principali
Codice:
47/2024 U MB
Città:
Seregno
Categoria:
Appartamento
Locali:
3
Camere:
2
Bagni:
1
Mq:
80
Box:
1
Mq Box:
15
Balconi:
2
Piano:
3
Anno:
2002
Classe energetica:
In fase di valutazione
Accessori
Ascensore
Mappa
Via Pellegrino Matteucci, 69 - Seregno (MB)
Richiedi informazioni
Invia
Cookie preference