APPARTAMENTO ALL'ASTA

In vendita
Appartamento
Cabiate
78.000 €
Descrizione
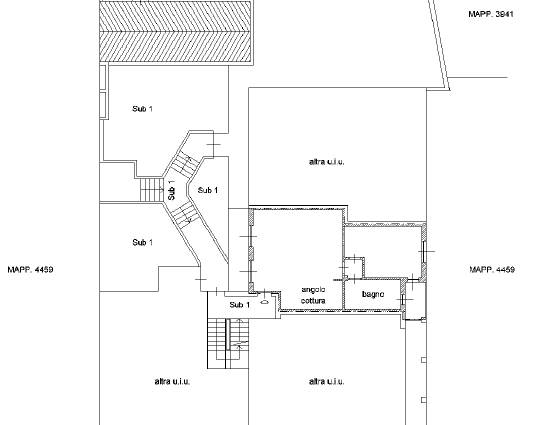
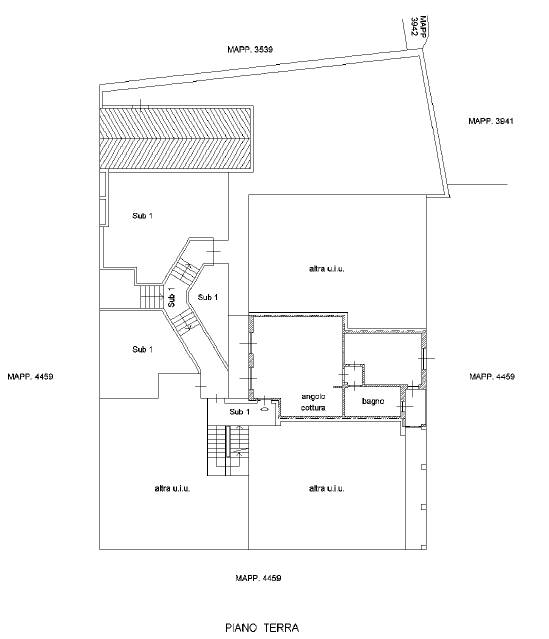
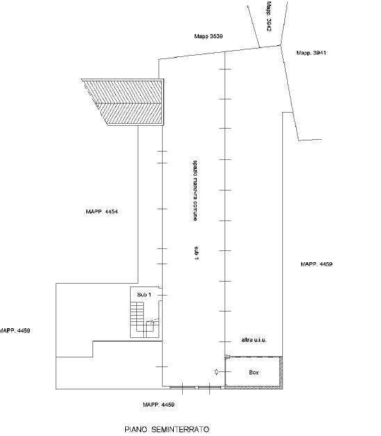
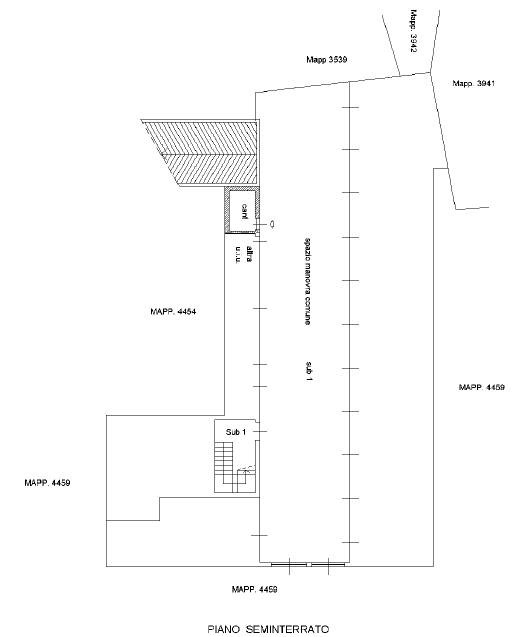
Appartamento al piano terra della superficie di mq.72, composto da soggiorno con angolo cottura, disimpegno, camera, bagno, due balconi e annessi box auto e cantina.
Caratteristiche principali
Codice:
24/2017 U CO
Città:
Cabiate
Categoria:
Appartamento
Locali:
2
Camere:
1
Bagni:
1
Mq:
68
Box:
1
Mq Box:
17
Mq Giardino:
12
Balconi:
2
Piano:
Terra
Classe energetica:
G
Mappa
Via Monte Grappa, 3 - Cabiate (CO)
Richiedi informazioni
Invia
Cookie preference