APPARTAMENTO ALL'ASTA

In vendita
Appartamento
Cinisello Balsamo
52.647 €
Descrizione
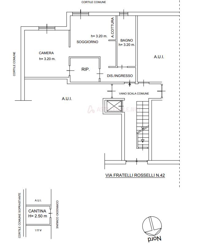
Bilocale di 51 mq posto al piano terra.
L’appartamento è composto da ingresso/disimpegno che collega il soggiorno con l’angolo cottura, bagno e camera da letto.
Completano la proprietà cantina al piano interrato e posto auto scoperto
Caratteristiche principali
Codice:
225/2023 U MI
Città:
Cinisello Balsamo
Categoria:
Appartamento
Locali:
3
Camere:
1
Bagni:
1
Mq:
51
Posti auto:
1
Piano:
Terra
Anno:
1963
Classe energetica:
G
Mappa
Via F.lli Rosselli, 42 - Cinisello Balsamo (MI)
Richiedi informazioni
Invia
Cookie preference