Toggle navigation
Home
Immobili
Vendite
Affitti
Prestigio
Aste
Chi siamo
Servizi
Abbonamenti
Vuoi vendere la tua casa?
Contatti
it
it
VILLA ALL'ASTA
In vendita
Villa
Mezzago
248.063 €
Previous
Next
Descrizione
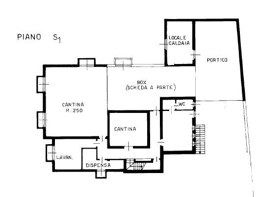
villa singola di 316 mq, disposta su 3 livelli:
Seminterrato: cantina, lavanderia, dispensa, locali tecnologici e box;
Piano terra: soggiorno, cucina, 3 camere, 2 bagni e giardino;
Primo piano: deposito, guardaroba e ripostiglio.
Caratteristiche principali
Codice:
190/2023 U MB
Città:
Mezzago
Categoria:
Villa
Locali:
4
Camere:
3
Bagni:
2
Mq:
270
Box:
1
Mq Box:
55
Mq Giardino:
410
Piano:
Terra
Classe energetica:
G
Mappa
Via dell'Acqua, 11 - Mezzago (MB)
Richiedi informazioni
Autorizzo il trattamento dei miei dati personali in base al Regolamento UE n. 679/2016 -
Privacy Policy
Autorizzo al trattamento dei dati per finalità di marketing, attività promozionali, offerte commerciali ed indagini di mercato.
Invia
Mantieni impostazioni di default X
Uso dei cookies
Questo sito fa uso di cookies. I nostri cookies (propri) e quelli dei nostri Partners (cookies di terzi) servono per poterti offrire un'esperienza unica con noi. Per questo motivo, insieme ai nostri partners, raccogliamo e processiamo informazioni non sensibili (come l'identificatore del tuo dispositivo o le pagine che visiti).
In qualsiasi momento potrai eliminare, modificare o verificare le informazioni che condividi in
Cookie preference
o nella nostra
Cookie Policy
e
Privacy Policy
.
Necessari
Funzionali
Profilazione
Analitici
Accetta tutti
Rifiuta tutti
Accetta selezionati
Cookie preference