APPARTAMENTO ALL'ASTA

In vendita
Appartamento
Meda
88.043 €
Descrizione
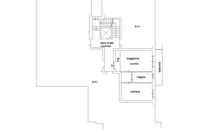
Appartamento di mq 57,20.
L’unità immobiliare è posta al piano Primo, scala C
Box singolo di mq 20 al piano interrato
Caratteristiche principali
Codice:
164/2025 U MB
Città:
Meda
Categoria:
Appartamento
Locali:
2
Camere:
1
Bagni:
1
Mq:
57
Box:
1
Mq Box:
20
Balconi:
1
Piano:
1
Classe energetica:
In fase di valutazione
Accessori
Ascensore
Mappa
Via treviso, 13 - Meda (MB)
Richiedi informazioni
Invia
Cookie preference