APPARTAMENTO ALL'ASTA

In vendita
Appartamento
Como
35.300 €
Descrizione
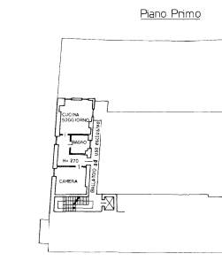
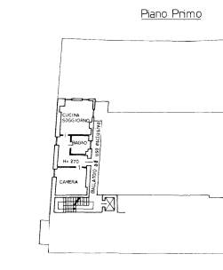
Appartamento, al piano primo, e posto auto coperto di pertinenza, al piano interrato, che sviluppano una superficie commerciale lorda di mq 69,77
Caratteristiche principali
Codice:
109/2023 U CO
Città:
Como
Categoria:
Appartamento
Locali:
2
Camere:
1
Bagni:
1
Mq:
62
Posti auto:
1
Piano:
1
Classe energetica:
G
Mappa
Via Napoleona, 28 - Como (CO)
Richiedi informazioni
Invia
Cookie preference