APPARTAMENTO

In vendita
2 locali
Pieve Emanuele
80.250 €
Descrizione
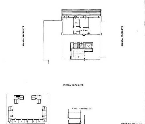
ASTA appartamento posto al piano primo, composto da due locali oltre servizi, con annesso un vano di cantina e posto auto coperto sito al piano sotterraneo
Caratteristiche principali
Codice:
99/2023 U MI
Città:
Pieve Emanuele
Categoria:
2 locali
Locali:
2
Camere:
1
Bagni:
1
Mq:
67
Balconi:
1
Terrazzi:
1
Classe energetica:
G
Stato Immobile:
Buono
Grado:
Medio
Posizione:
Centro
Arredi:
Semi Arredato
Tipo Soggiorno:
Soggiorno
Tipo Cucina:
Abitabile
Tipo Impianto:
Radiatori
Infissi:
Legno
Serramenti:
Buono
Persiana:
Tapparella Legno
Mappa
Via dei pini , 6 - Pieve Emanuele (MI)
Richiedi informazioni
Invia
Cookie preference