APPARTAMENTO ALL'ASTA

In vendita
Appartamento
Caponago
89.400 €
Descrizione
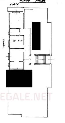
Appartamento della superficie commerciale di 83,71 mq posto al primo piano senza ascensore costituito da ingresso, soggiorno e angolo cottura, due camere, un bagno , due piccoli ripostigli e balconcino a servizio di una camera. Completano la proprietà una cantina ed un box
Caratteristiche principali
Codice:
456/2024 U MB
Città:
Caponago
Categoria:
Appartamento
Locali:
3
Camere:
2
Bagni:
1
Mq:
83
Box:
1
Mq Box:
8
Balconi:
1
Piano:
1
Classe energetica:
G
Mappa
Via luigi senatore simonetta, 3/5 - Caponago (MB)
Richiedi informazioni
Invia
Cookie preference