APPARTAMENTO ALL'ASTA

In vendita
Appartamento
Pioltello
184.500 €
Descrizione
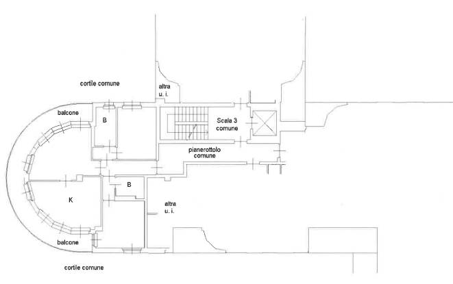
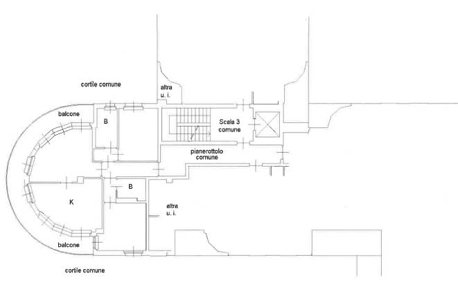
Appartamento al terzo piano della superficie commerciale di 110 mq. composto da corridoio d’ingresso, soggiorno, cucina, due disimpegni, due camere, due bagni, un balcone e cantina di pertinenza al piano interrato;
Box autorimessa pertinenziale con accesso da via carlo cattaneo n. 3, al piano interrato, della superficie commerciale di 17 mq.
Caratteristiche principali
Codice:
428/2025 U MI
Città:
Pioltello
Categoria:
Appartamento
Locali:
3
Camere:
2
Bagni:
2
Mq:
108
Box:
1
Mq Box:
17
Balconi:
1
Piano:
3
Anno:
2006
Classe energetica:
In fase di valutazione
Accessori
Ascensore
Mappa
Piazza dei Popoli, 7 - Pioltello (MI)
Richiedi informazioni
Invia
Cookie preference