UNITA' IMMOBILIARI ALL'ASTA

In vendita
Appartamento
Biassono
159.000 €
Descrizione
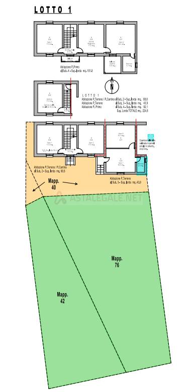
Tre unità immobiliari adibite ad abitazione e quattro appezzamenti di terreno adibiti a giardino piantumato oltre alla corte da cui si accede

OCCUPATO CON CONTRATTO DI AFFITTO VALIDO FINO AD AGOSTO 2027
CANONE ANNUO: € 6.000,00
Caratteristiche principali
Codice:
39/2021 1 MB
Città:
Biassono
Categoria:
Appartamento
Locali:
7
Camere:
2
Bagni:
2
Mq:
212
Balconi:
2
Piano:
Terra
Classe energetica:
G
Mappa
Via Regina Margherita, 1 - Biassono (MB)
Richiedi informazioni
Invia
Cookie preference