APPARTAMENTO ALL'ASTA

In vendita
Appartamento
Costa Masnaga
107.025 €
Descrizione
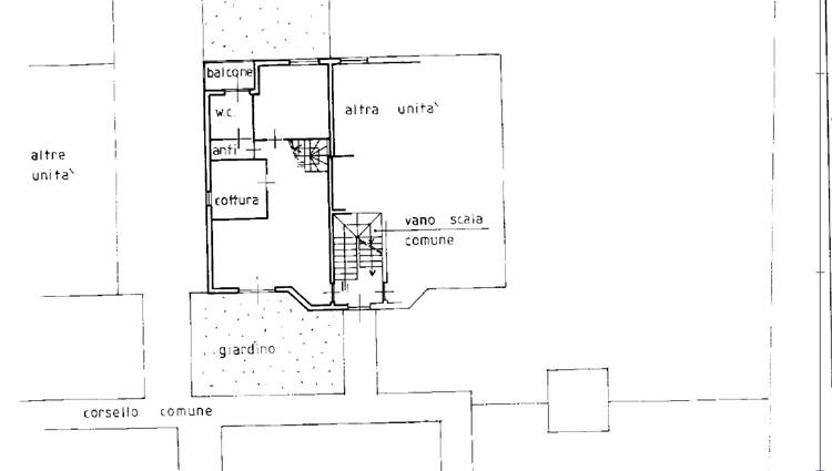
Appartamento disposto su due livelli.
A piano terreno composto da soggiorno, camera, locale cottura,
bagno con antibagno, porticato e porzioni di giardino.
A piano primo, collegato da scala interna in
legno, camera, sala lettura, bagno, disimpegno e balcone.
A piano interrato cantina e box.
Caratteristiche principali
Codice:
34/2025 LC
Città:
Costa Masnaga
Categoria:
Appartamento
Locali:
4
Camere:
3
Bagni:
2
Mq:
111
Box:
1
Mq Box:
16
Mq Giardino:
90
Balconi:
1
Piano:
Terra
Anno:
1998
Classe energetica:
G
Mappa
Via Guglielmo Marconi, 27 - Costa Masnaga (LC)
Richiedi informazioni
Invia
Cookie preference