APPARTAMENTO ALL'ASTA

In vendita
Appartamento
Cermenate
58.000 €
Descrizione
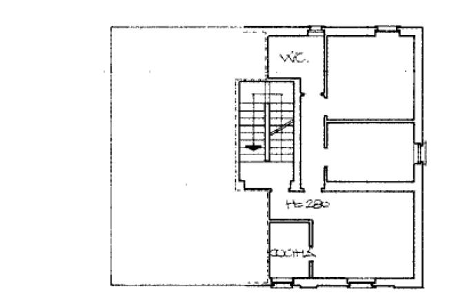
Appartamento ubicato al piano primo, composto da ingresso, soggiorno, piccolo locale cottura, corridoio, bagno e due camere da letto, oltre a box.
Caratteristiche principali
Codice:
218/2023 U CO
Città:
Cermenate
Categoria:
Appartamento
Locali:
3
Camere:
2
Bagni:
1
Mq:
72
Box:
1
Mq Box:
13
Piano:
1
Classe energetica:
G
Mappa
Vicolo Porta, 37 - Cermenate (CO)
Richiedi informazioni
Invia
Cookie preference