APPARTAMENTO ALL'ASTA

In vendita
Appartamento
Cornate d'Adda
57.750 €
Descrizione
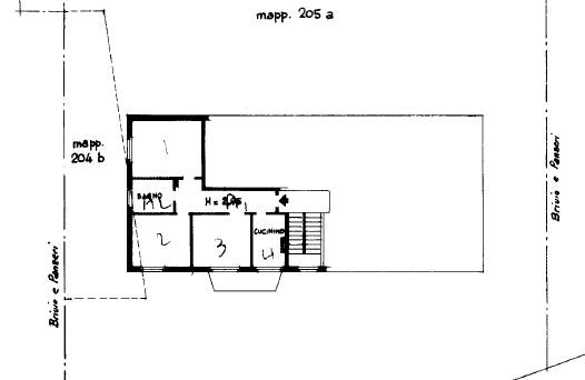
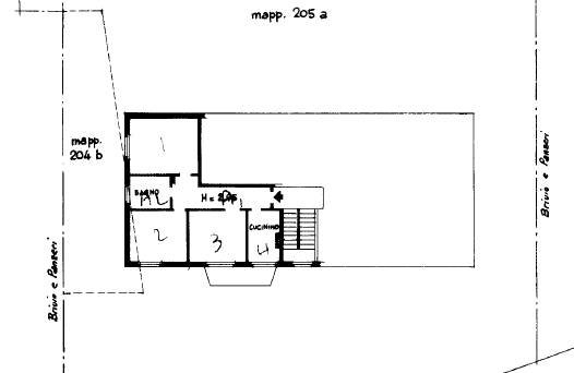
Appartamento di mq. 76
Composto da ingresso con disimpegno, cucina con accesso al balcone, tre camere e un bagno.
Cantina al piano seminterrato
Caratteristiche principali
Codice:
18/2025 MB
Città:
Cornate d'Adda
Categoria:
Appartamento
Locali:
3
Camere:
2
Bagni:
1
Mq:
76
Balconi:
1
Piano:
1
Anno:
1967
Classe energetica:
G
Mappa
Via battisti, 52 - Cornate d'Adda (MB)
Richiedi informazioni
Invia
Cookie preference