APPARTAMENTO ALL'ASTA

In vendita
Appartamento
Bellusco
175.000 €
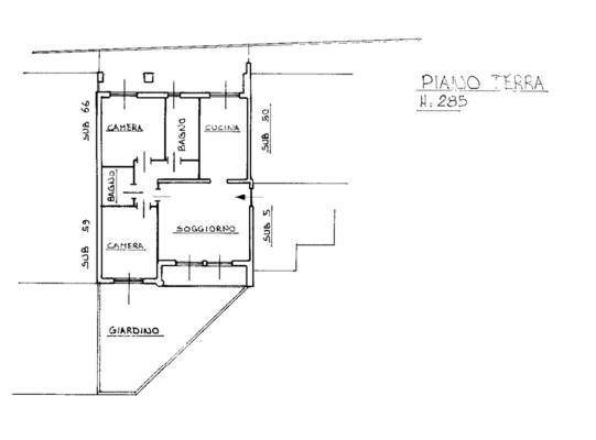
Descrizione
Appartamento al piano terra, composto da n. 3 locali, cucina, n. 2 bagni, giardino pertinenziale al piano terra e locale cantina al piano interrato oltre box piano seminterrato
Caratteristiche principali
Codice:
172/2024 16 MB
Città:
Bellusco
Categoria:
Appartamento
Locali:
3
Camere:
2
Bagni:
2
Mq:
100
Mq Box:
26
Mq Giardino:
50
Piano:
Terra
Anno:
1995
Classe energetica:
In fase di valutazione
Accessori
Ascensore
Mappa
Via Milano, 11/D - Bellusco (MB)
Richiedi informazioni
Invia
Cookie preference