APPARTAMENTO ALL'ASTA

In vendita
Appartamento
Chiesa in Valmalenco
67.680 €
Descrizione
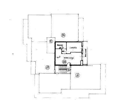
APPARTAMENTO in contesto condominiale – complesso immobiliare “Cà de Legn”, superficie commerciale di 50 mq, posto al secondo piano e costituito da soggiorno-pranzo con angolo cottura, balcone, disimpegno, bagno e camera.
Caratteristiche principali
Codice:
17/2013 1 SO
Città:
Chiesa in Valmalenco
Categoria:
Appartamento
Locali:
2
Camere:
1
Bagni:
1
Mq:
50
Balconi:
1
Piano:
2
Anno:
1984
Classe energetica:
G
Mappa
Via Guglielmo Marconi, 18 - Chiesa in Valmalenco (SO)
Richiedi informazioni
Invia
Cookie preference