Toggle navigation
Home
Immobili
Vendite
Affitti
Prestigio
Aste
Chi siamo
Servizi
Abbonamenti
Vuoi vendere la tua casa?
Contatti
it
it
APPARTAMENTO ALL'ASTA
In vendita
Appartamento
Valmadrera
221.925 €
Previous
Next
Descrizione
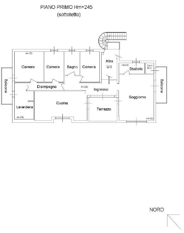
Appartamento al piano 1° sottotetto
Composto da disimpegno, soggiorno, ripostiglio (utilizzato come studio), cucina abitabile, 3 camere, bagno, lavanderia, terrazzo, 2 balconi
Caratteristiche principali
Codice:
121/2024 U LC
Città:
Valmadrera
Categoria:
Appartamento
Locali:
5
Camere:
3
Bagni:
1
Mq:
205
Balconi:
2
Terrazzi:
1
Piano:
1
Anno:
1971
Anno ristrutturazione:
2002
Classe energetica:
G
Mappa
Via Renzo e Lucia, 4 - Valmadrera (LC)
Richiedi informazioni
Autorizzo il trattamento dei miei dati personali in base al Regolamento UE n. 679/2016 -
Privacy Policy
Autorizzo al trattamento dei dati per finalità di marketing, attività promozionali, offerte commerciali ed indagini di mercato.
Invia
Mantieni impostazioni di default X
Uso dei cookies
Questo sito fa uso di cookies. I nostri cookies (propri) e quelli dei nostri Partners (cookies di terzi) servono per poterti offrire un'esperienza unica con noi. Per questo motivo, insieme ai nostri partners, raccogliamo e processiamo informazioni non sensibili (come l'identificatore del tuo dispositivo o le pagine che visiti).
In qualsiasi momento potrai eliminare, modificare o verificare le informazioni che condividi in
Cookie preference
o nella nostra
Cookie Policy
e
Privacy Policy
.
Necessari
Funzionali
Profilazione
Analitici
Accetta tutti
Rifiuta tutti
Accetta selezionati
Cookie preference